Поможем найти офис в аренду!
Снять офис
Москва, Орджоникидзе д.11 с.11

Бизнес-центр "Головинские пруды"

  • Помещение 254.7 м2 Бизнес-центр Головинские пруды – фото объекта
Помещение 254.7 м2 Бизнес-центр Головинские пруды – фото объекта
254.7 м2
Адрес: Москва, Михалковская, 63Б
Тип недвижимости: Бизнес-центр
Округ: САО
Район: Коптево
Метро: Коптево (МЦК) (8 минут пешком)
Балтийская (МЦК) (16 минут пешком)
Водный стадион (16 минут пешком)
Класс объекта: B
Тип помещения: Офисное
Наличие мебели: Без мебели
ПАРКОВКА
Подземная:
нет
Наземная:
да
коэф. 1/10010 000 руб.
Городская:
да
Бесплатная
В Бизнес-центре "Головинские пруды" в аренду предлагается офисное помещение площадью 254,7 кв. м. Бизнес- центр находится по адресу: г. Москва, ул. Михалковская, дом 63Б, в пятнадцати минутах ходьбы от метро Водный стадион. БЦ оснащен всеми современными системами отопления и вентиляции, что создает комфортные условия для работы арендатора. Помещение с отделкой, готово к въезду
Площадь, м2 Этаж Стоимость, м2/год Стоимость в месяц
254.7 11 13 000 руб. 275 925 руб.


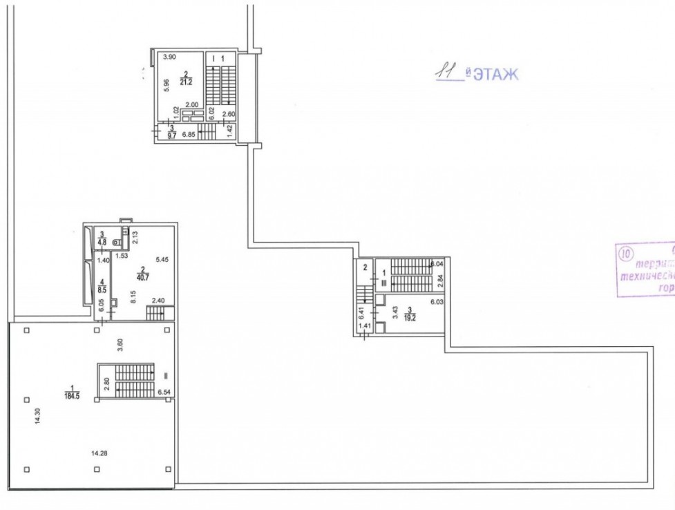
План помещения

Помещение 254.7 м2
Налоги Состояние Тип
УСН С отделкой Офисное

Организовать просмотр

Я даю согласие на обработку моих персональных данных в соответствии с Условиями

Другие помещения в данном бизнес-центре

Площадь: 80 м2

  • Этаж: 10
  • Тип помещения: Офисное
  • Состояние: С отделкой
  • Наличие мебели: Без мебели
  • Стоимость: 13000 руб. за м2 в год

Площадь: 116.9 м2

  • Этаж: 3
  • Тип помещения: Офисное
  • Состояние: С отделкой
  • Наличие мебели: Без мебели
  • Стоимость: 12000 руб. за м2 в год

Площадь: 117 м2

  • Этаж: 5
  • Тип помещения: Офисное
  • Состояние: С отделкой
  • Наличие мебели: Без мебели
  • Стоимость: 12000 руб. за м2 в год